Bepaal je indeling

17 september '21

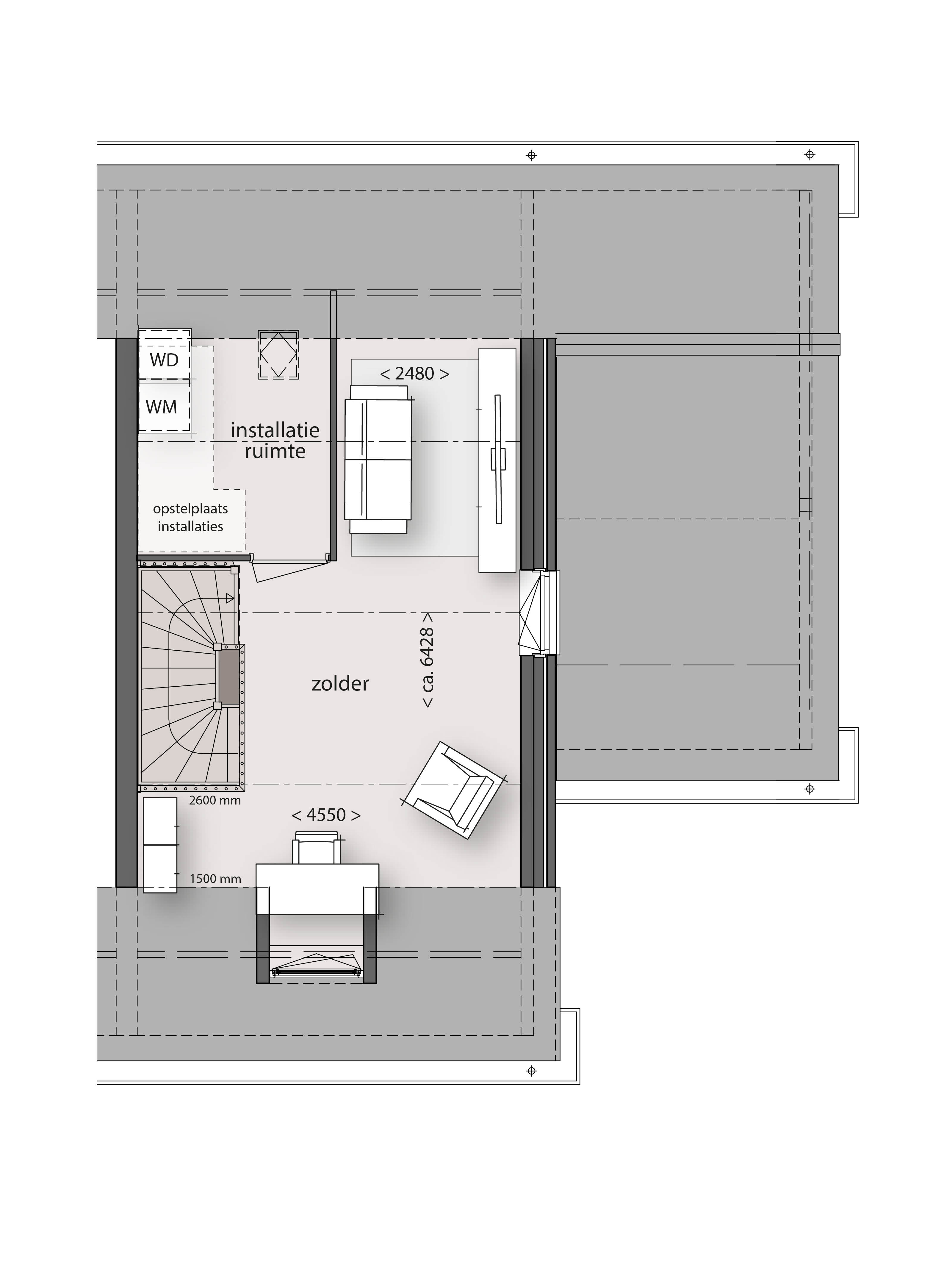
Waar komt jouw bank te staan? Wij helpen je vast een handje om dat te bepalen! De plattegronden zijn ondertussen toegevoegd aan de woningtypes op de website en wij hebben ze vast ingekleurd en aangekleed. Dan heb je vast een goed beeld van hoe je jouw favoriete woning kunt indelen!

De plattegronden

Het indelen van je nieuwe huis is altijd lastig op basis van een plattegrond. Daarom hebben wij vast een standaard indeling voor je uitgewerkt. 

Zodra de verkoop start kun je ook de gedetailleerde plattegronden (op schaal) per bouwnummer downloaden. Op dat moment zijn ook de zogenoemde 'optietekeningen' beschikbaar. Op een optietekening worden ook de meest gekozen opties (bijvoorbeeld een uitbouw) getoond.

Je vindt de geïllustreerde plattegronden bij het woningaanbod op deze website. Bekijk de woningen en de bijbehorende plattegronden.

Bekijk plattegronden